Le Constellation – Warehouses, business premises, offices
Description product :
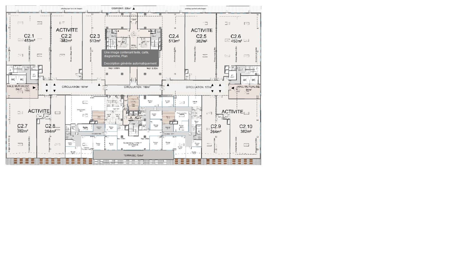
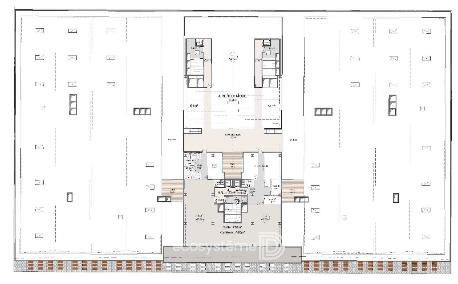
Le Constellation is a mixed-use building ideally located at the entrance to the city. It offers space dedicated to urban logistics, retail, business units, laboratory/office space, a coworking area and a cafeteria.
Technicals caracteristics :
- Disponibility : Late 2026
- Min superficy : 1238 m²
- Max area : 20 026 m²
-
Public Transports :
Line 17
Line 18
[@logo1802] Dunkirk (TGV) 1 km
A16 3 km
A25 5 km
Lille (LIL) 82 km
Paris (CDG) 256 km
Brussels (BRU) 170 km
Container terminal 15 km
terminal 15 km
Inland port 11 km
Railway station 15 km
2 km
700 m
700 m
Supermarché 1 km -
Amenities :
Beam heights for storage cells: 8.50 m on ground floor / 7.5 m on first floor / 5 m on second floor / 2.8 m on third floor.
Single-storey, motorized dock doors: 4m x 3m70 on ground floor, 3m x 3m70 on ground floor + 1.
Goods elevators for access to upper floors: 1.5t max.
Exterior reception accessible to 19t.
PRM-accessible elevator: 630 kgs max
Operating loads: activity on ground floor: 3t/m², activity on 1st floor: 2t/m², and 2nd floor: 1t/m², offices on mezzanine: 350 kgs/m².
Passenger car parking on 1st floor + free park-and-ride 500 m away
Useful information
Reference of property : 1280656-0LBCWN
Type of property : CW Partagé







Line 17
A16 3 km
Lille (LIL) 82 km
Container terminal 15 km
terminal 15 km
Railway station 15 km
2 km
700 m
700 m