Business premises in ZFU
Description product :
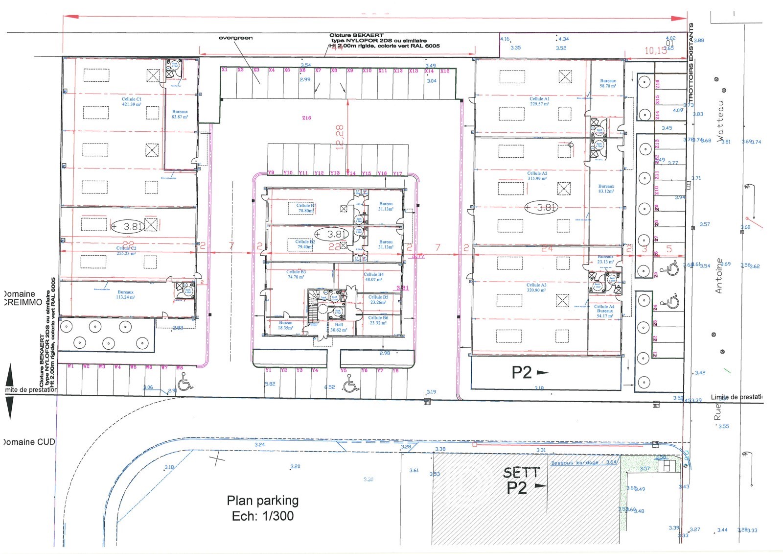
The Michel Naels business village is located in the urban free zone of Saint Pol sur Mer. Its location in an urban environment, on the edge of major roads and the eastern port of Dunkirk, allows easy and quick access to the major industrial companies of the agglomeration. A business premises composed of a workshop, an office space and a mezzanine is currently available for rent.
Technicals caracteristics :
- Disponibility : Immediate
- Property state : ENG_2nd main / Etat d'usage
- Min superficy : 188 m²
- Max area : 188 m²
-
Public Transports :
Line 15 (free)
Line C5 (free)
[@logo1802] Dunkerque (TGV) 2.5 km
A16 (exit 58) 2 km
A25 3.5 km
Lille (LIL) 80km
Paris (CDG) 280km
Brussels (BRU) 170 km
Container terminal 17 km
terminal 17 km
River port 10 km
Rail freight station 17 km
Saint-Pol-sur-Mer 1.4 km
Supermarché 600 m
2 km -
Amenities :
Private sanitary facilities
Useful information
Reference of property : 997813-0L
Type of property : Locaux d'activité





Line 15 (free)
A16 (exit 58) 2 km
Lille (LIL) 80km
Container terminal 17 km
terminal 17 km
Rail freight station 17 km
Saint-Pol-sur-Mer 1.4 km
2 km